
Use the following links to find out more:
What is the Concept of our Project?
How will our project help the community?
Has the Community been involved in the process?
What are the details of our proposals?
What is the current status of the project?
What is the Concept of our Project?
Our project concept is to construct a new building in the heart of Shavington village that will offer modern facilities for both community and worship use.
Who are we?
St. Mark’s church is located in Shavington, just south of Crewe in Cheshire, and is one of two churches in the parish of Weston, part of the Diocese of Chester. The existing church was built as a “mission church” in 1894 and a separate church hall was added at a slightly later date. The present kitchen and toilet facilities were built as a “Link building” between the two in 1998.
Mission churches can be found all around the country and were traditionally a low cost, lightweight option – St. Mark’s is no exception. The church building is a wooden framed structure clad in corrugated iron sheeting (this was covered in a thin layer of stone cladding in 1975) with a corrugated asbestos sheet roof and internal wooden panelled walls. Mission churches were always considered as a “temporary” solution pending construction of something more substantial when funds permitted.
The church owns a field which was gifted in the 1930s by Mrs Helen Lancaster specifically to provide land for the construction of a new church and funds have been collected since then which, together with an invested legacy, currently amount to around £300k ring-fenced for a new building. We were recently successful in applying for and being awarded a grant from the Co-Op Community Fund towards the project.
Why do we need a new build?
Our Quinquennial (5-yearly) architectural inspection in 2015 revealed major deterioration of the roof and the architect advised a remaining life of 5 years. Due to the lightweight nature of the building, major reconstruction would be necessary, as the existing walls will not support a new roof.
It was decided to take the opportunity to use our land and funds and embark on a new build project, not only to provide a replacement building but to expand our current facilities to fulfil the needs of our expanding local community. The existing church and hall buildings are poorly insulated, draughty and do not address modern day expectations in such areas as disabled access or facilities for parents and babies. Toilet facilities are limited.
Who do we serve at present?
As well as catering for worshippers, the church and hall have traditionally provided venues for a wide range of community activities (current activities are listed here ) and a new Community Café is now established.
How will our project help the community?
Shavington village is expanding rapidly due to several ongoing large scale housing developments; the developers have not made any significant provision for additional local facilities however. There is also a large elderly element in the local population.
The village itself has few facilities, poor public transport (particularly at evenings and weekends) and very limited public parking. St. Mark’s has always been a well-used venue for community activities but we have often had to decline bookings due to lack of space.
Our proposals will enhance our current community provision and offer more facilities to a wider cross section of the population. In summary we want to:
- Enlarge our main Community and Worshipping Spaces which will be linkable via an acoustic dividing door to enable them to become a single space for large events
- Encourage additional community activities in the Worship Space when it is not otherwise in use for services or other church activities
- Provide a Community café
- Provide a Meeting Room
- Provide a safe enclosed outdoor play area for children
- Offer modern toilet and baby changing facilities
- Ensure easy disabled access
- Provide easily accessible car parking
Has the Community been involved in the process?
Different parts of the local community have been involved at various stages of the project to date:
- Residents – public meetings have been held to explain concepts and progress; survey (in paper and electronic form) undertaken to ascertain residents’ views in 2017. Leaflet to all households with updated project details – May 2021.
- Users – those who currently use our facilities have been consulted about the proposals.
- Shavington-cum-Gresty Parish Council – involved at project concept stage and broadly supportive of proposals. Informed of current progress July 2019.
- Cheshire East Council – responded positively to our pre-planning application enquiry; local Ward Councillors broadly supportive
What are the details of our proposals?
The proposed new building on the church field will comprise the following elements:
- Worshipping Space and Community Space
- Kitchen serving the Community Space
- Entrance Foyer giving direct access to Spaces and Café with an adjacent Office
- Community Café with Servery seating approx 24
- Meeting Room seating approx 12
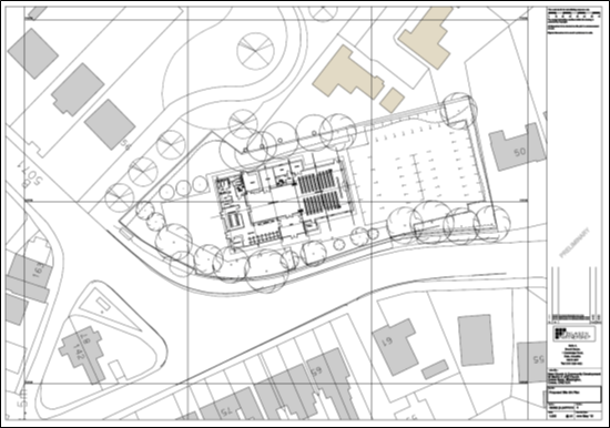
The building will be single storey with pitched roof will have a footprint of approximately 600 m2. The remainder of the 2600 m2 field will be occupied by car parking, an enclosed play area and an accessible garden with picnic tables.
Vehicular access to the car park from Crewe Road will be via an entrance located where the current field gate is situated. A separate pedestrian access will be located on Crewe Road immediately in front of the main entrance. The majority of the existing trees will be retained. It is intended that the building will be environmentally sustainable – the details are yet to be finalised but may include features such as solar panels, ground source heating and rainwater storage.
The site plan, floor plan, building elevations and computer-simulated views can be found here. Final external and internal finishes have not yet been decided.
What is the current status of the project?
Detailed design work is nearly complete after which we will engage a Quantity Surveyor to cost the project. This costing will enable us to apply for funding.
Key project milestones are listed here.
Can I donate to the project?
Online donations to the St. Mark’s new build project can be made here.
Community Activities at St. Mark’s
- Weekly Community Café
- Parents and Toddler Group
- Craft and Chatter
- Community Choir (SAS – Singers at St. Mark’s)
- Local St. Luke’s Hospice Support Group
- Women’s Institute
- Prize Bingo
- Choral and Brass Band Concerts
- Pie and Film Nights
- Afternoon Teas
- Local Drama Group and Pantomime Group Rehearsals
- Craft Fayres
- Ad-hoc Community Group and Business Meetings
- Birthday and Anniversary Parties
PLANS AND COMPUTER GENERATED IMAGES
KEY PROJECT MILESTONES
November 2016 Statement of Intent issued
February 2017 Architect appointed (Martyn Wilshaw of Finlason Partnership)
April 2017 Project Working Groups formed
June 2017 Leafleting to village households and Community Survey
September 2017 Client Brief issued to Architect
February 2018 Initial Architect proposals; Pre-Application Enquiry sent to Cheshire East Council (CEC)
August 2018 Response received from CEC
December 2018 Updated Architect proposals received – needed review to ensure compliance with Client Brief
March 2019 Revised design (single storey and different roof design) received
August 2019 Second Pre-Application Enquiry sent to CEC
November 2019 Statement of Significance and Need prepared for DAC
December 2019 Meeting with DAC – comments received
Early 2020 Review of designs of other new church buildings carried out
November 2020 Updated design agreed with Architect
December 2020 DAC meeting considered new design – additional comments received
March 2021 Response to DAC agreed with Architect
April 2021 PCC approval to proposals
May 2021 Leafleting to village households
August 2021 Planning Application submitted
September 2021 Planning Application registered
June 2022 Planning permission has been granted subject to conditions.
January 2023 Consulting Engineers appointed to undertake Structural Design and Building Services
May 2023 Detailed Ground Investigations undertaken and Ecological Enhancement Strategy document finalised
August 2024 CEC granted non-material amendments to planning application
September 2024 Detailed discussion with Architect on kitchen layouts and internal finishes
January 2025 Quantity Surveyor appointed to compile detailed project costing.
FAQs
Why do you need a new church?
The existing building is 125 years old and was only built as a lightweight temporary structure. The church and hall are used not just for worship but also for a wide range of community activities by various groups.
The 2015 Architectural Inspection revealed major problems with the roof which was given a 5 year remaining life. Fitting a new roof is not an option, so we opted for a complete new build to replace the existing church and hall.
Why are you building it on the field?
The church field was gifted to St. Mark’s in the 1930s for the specific purpose of enabling a new church to be built and gives enough space to accommodate our proposals.
Have you consulted locally?
A Community Survey was undertaken in 2017 in both paper form and via the Internet. We received 148 replies. We took account of the responses when formulating our ideas for the new build. A leaflet with updated details of the project will be circulated to households in the village in May 2021.
What is the current status of the project?
Detailed design work is nearly complete after which we will engage a Quantity Surveyor to cost the project. This costing will enable us to apply for funding.
What will happen to the site of the old church?
The site will be sold to offset the cost of the new build – we will consider restrictions to ensure that any new development meets the needs of the community.
What will the new church look like?
The design is in the final stages of development but the building will be single storey with a pitched roof. Access to all areas will be via a single entrance with an adjacent office for inquiries. Computer-modelled views can be seen on our parish website (see “when will we be able to see the plans?”).
What facilities will it have?
There will be spaces for both worship and community use (which will be larger and more flexible in configuration than at present) as well as a café area and meeting room. Toilet facilities will be much improved with extra provision for baby changing and the disabled. There will also be a modern kitchen, a vestry and storage rooms.
When will we be able to see the plans?
The plans are available on our parish website www.allsaintsandstmarks.com.
Will there still be any green space?
There will still be green space remaining and we intend using this for a variety of community-friendly purposes which are yet to be determined.
What will happen to the trees?
Most of the existing trees will remain as they are not affected by the development; one exception is a single tree that will have to be removed at the main entrance.
How much will it cost?
This will depend on the final design and quoted construction costs but is likely to be in the region of £800k plus.
How much money do you still need to raise?
Taking account of existing funds, an estimate of the current site value and the likely construction cost, we will probably need to raise an additional £400k. We intend making applications to a wide range of grant awarding / funding bodies to make up the shortfall as well as continuing to hold our own fundraising events.
Will there be a car park?
There will be parking for approximately 30 cars including dedicated disabled spaces.
Where will the entrance be?
The vehicle entrance will be at the same location as the existing field gate; there will be a separate pedestrian entrance from Crewe Road immediately in front of the entrance to the building.
Will construction cause disruption?
We would intend minimising noise and disruption and we will ensure that the chosen contractor is a member of the Considerate Constructors Scheme and complies with their code of practice.
When will you start building?
Once the detailed design is finalised and costed we will be able to apply for grants and funding. Once this is secured we will award the contract and construction would then commence. This is unlikely to be before Spring 2025.
How long will the construction work take?
Construction work could take around 9 months to complete.














